上越・妙高・糸魚川の賃貸アパート・賃貸マンション・土地・一戸建てなど不動産情報サイト

  • らくすむ上越版 上越・妙高・糸魚川の不動産情報サイト

新潟県長岡市寺泊鰐口161 中古一戸建て 10LDK 500,000円の物件情報

286坪の広い敷地! 建物は大規模修繕が必要です!

物件名/所在地 詳細 価格
長岡市寺泊鰐口 中古住宅
新潟県長岡市寺泊鰐口161
  • 土地面積
    :945.59㎡ /286.04坪
  • 建物面積
    :235.7㎡ /71.29坪
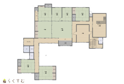
  • 間取り
    :10LDK
  • 築年月
    :1921年4月
500,000
  • 長岡市寺泊鰐口 中古住宅
    ブレイン・リアルエステート合同会社
  • この物件を問い合わせる/無料
  • TEL: 0258-86-6934

物件画像

外観 間取り
物件画像
※画像クリックで拡大表示
外観
物件画像
※画像クリックで拡大表示
間取り
詳細画像


物件概要

一番古い建物は大正10年築 その後昭和62年増築、平成6年に増築されています。
物件コード 00044-200695
物件名 長岡市寺泊鰐口 中古住宅
交通 駅:越後線 寺泊駅から徒歩12分、バス:寺泊駅前から徒歩11分
物件所在地 新潟県長岡市寺泊鰐口161
物件種別 中古一戸建て
構造 木造 階建 地上2階建
建ぺい率/容積率 -
建物面積 1階 192.56㎡/ 2階 43.14㎡/ 計 235.7㎡ /71.29坪
土地面積 945.59㎡ /286.04坪
築年月 1921年4月(築104年)
入居時期 即入居可
用途地域 用途の指定のない地域 地目 宅地
都市計画 都市計画区域外 学校区 寺泊小学校(4,270m)・寺泊中学校(2,247m)
形状 - 道路 南側:公道 5m
  • 長岡市寺泊鰐口 中古住宅
    ブレイン・リアルエステート合同会社
  • この物件を問い合わせる/無料
  • TEL: 0258-86-6934

物件詳細情報

所在階/階数 - 号室 -
販売価格 500,000円 方位
間取り 10LDK
専有面積 - バルコニー面積 -
その他面積 - 駐車場 -
管理費 - 修繕積立金 -
引渡 - 現況 空家
仲介手数料 330,000円
おすすめ条件 -
設備 日当り良好、閑静な住宅街、駐車3台以上可能、システムキッチン、バス1坪以上、LPG、上水道、浄化槽
取引態様 専任
備考 ■売主による契約不適合責任免責とします。 ■境界非明示での引渡しとなります ■建物の増築登記が未了ですが売主にて登記をし引渡しとなります ■1階の床全体が湿気や白蟻被害がありますことを告知します、買主の負担にて補修工事を行うものとします。 ■2階和室天井に雨漏り跡ありますが売主にて補修済みです
■固定資産税 年65310円 ■現在浄化槽を使用、敷地内に下水道の桝はありますが未接続です 
取り扱い会社

ブレイン・リアルエステート合同会社

新潟県長岡市大島本町3丁目10番8号202号室

情報登録日 2025/09/18 次回更新予定日 2025/10/25
  • 長岡市寺泊鰐口 中古住宅
    ブレイン・リアルエステート合同会社
  • この物件を問い合わせる/無料
  • TEL: 0258-86-6934

この物件の地図・周辺情報・行政情報

この物件の周辺情報・行政情報を詳しく見る
【周辺情報】
物件の近くにあるコンビニや銀行・学校など、アイコン付のマップで詳しく表示できます!
【行政情報】
水道料や下水道料・ガス料金など、暮らしに関係のある情報を表示しています。

担当取扱い店舗情報

取扱い店舗画像
ブレイン・リアルエステート合同会社
TEL: 0258-86-6934
所在地: 新潟県長岡市大島本町3丁目10番8号202号室
交通:
営業時間: 9:30~18:00/定休日:水曜日、日曜日
免許番号: 新潟県知事(3)第4978号 この会社の情報を詳しく見る
所属団体名: ブレインリアルエステート合同会社
取引態様: 専任
ホームページ: http://www.brain-niigata.co.jp