一番古い建物は大正10年築 その後昭和62年増築、平成6年に増築されています。 | |||
物件コード | 00044-200695 | ||
---|---|---|---|
物件名 | 長岡市寺泊鰐口 中古住宅 | ||
交通 | 駅:越後線 寺泊駅から徒歩12分、バス:寺泊駅前から徒歩11分 | ||
物件所在地 | 新潟県長岡市寺泊鰐口161 | ||
物件種別 | 中古一戸建て | ||
構造 | 木造 | 階建 | 地上2階建 |
建ぺい率/容積率 | - | ||
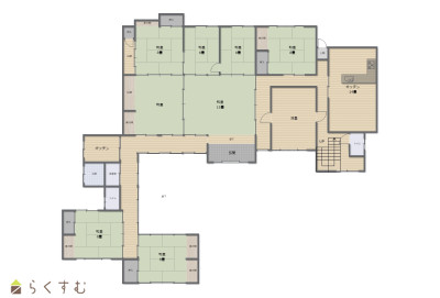
建物面積 | 1階 192.56㎡/ 2階 43.14㎡/ 計 235.7㎡ /71.29坪 | ||
土地面積 | 945.59㎡ /286.04坪 | ||
築年月 | 1921年4月(築104年) | ||
入居時期 | 即入居可 | ||
用途地域 | 用途の指定のない地域 | 地目 | 宅地 |
都市計画 | 都市計画区域外 | 学校区 | 寺泊小学校(4,270m)・寺泊中学校(2,247m) |
形状 | - | 道路 | 南側:公道 5m |
所在階/階数 | - | 号室 | - |
---|---|---|---|
販売価格 | 500,000円 | 方位 | 南 |
間取り | 10LDK | ||
専有面積 | - | バルコニー面積 | - |
その他面積 | - | 駐車場 | - |
管理費 | - | 修繕積立金 | - |
引渡 | - | 現況 | 空家 |
仲介手数料 | 330,000円 | ||
おすすめ条件 | - | ||
設備 | 日当り良好、閑静な住宅街、駐車3台以上可能、システムキッチン、バス1坪以上、LPG、上水道、浄化槽 | ||
取引態様 | 専任 | ||
備考 | ■売主による契約不適合責任免責とします。 ■境界非明示での引渡しとなります ■建物の増築登記が未了ですが売主にて登記をし引渡しとなります ■1階の床全体が湿気や白蟻被害がありますことを告知します、買主の負担にて補修工事を行うものとします。 ■2階和室天井に雨漏り跡ありますが売主にて補修済みです ■固定資産税 年65310円 ■現在浄化槽を使用、敷地内に下水道の桝はありますが未接続です |
||
情報登録日 | 2025/09/18 | 次回更新予定日 | 2025/10/25 |
|
![]() |
|
|
TEL: | 0258-86-6934 |
---|---|
所在地: | 新潟県長岡市大島本町3丁目10番8号202号室 |
交通: | |
営業時間: | 9:30~18:00/定休日:水曜日、日曜日 |
免許番号: | 新潟県知事(3)第4978号 |
所属団体名: | ブレインリアルエステート合同会社 |
取引態様: | 専任 |