上越・妙高・糸魚川の賃貸アパート・賃貸マンション・土地・一戸建てなど不動産情報サイト

  • らくすむ上越版 上越・妙高・糸魚川の不動産情報サイト

新潟県上越市南本町1丁目5-18 投資物件・その他 4,000,000円の物件情報

幹線道路沿い!水回りリフォーム済み!

物件名/所在地 詳細 価格
南本町1丁目 売家
新潟県上越市南本町1丁目5-18
  • 土地面積
    :158.4㎡ /47.91坪
  • 建ぺい率
    :60%
  • 容積率
    :200%
4,000,000
  • 南本町1丁目 売家
    上越宅地販売株式会社
  • この物件を問い合わせる/無料
  • TEL: 025-522-3838

物件画像

外観 間取り
物件画像
※画像クリックで拡大表示
外観
物件画像
※画像クリックで拡大表示
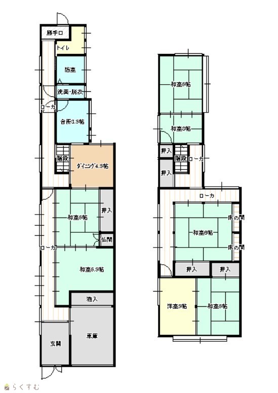
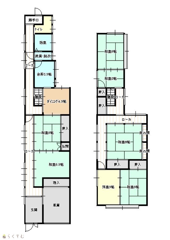
間取図
詳細画像


物件概要

物件コード 00308-200232
物件名 南本町1丁目 売家
交通 駅:妙高はねうまライン 南高田駅から徒歩13分
物件所在地 新潟県上越市南本町1丁目5-18
物件種別 投資物件・その他
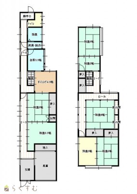
構造 木造 階建 地上2階建
建ぺい率/容積率 60%/200%
建物面積 1階 93.32㎡/ 2階 42.97㎡/ 計 136.29㎡ /41.22坪
土地面積 158.4㎡ /47.91坪
築年月 不詳
入居時期 相談
用途地域 準工業地域 地目 宅地
都市計画 市街化区域 学校区 南本町小学校(1,017m)・城西中学校(677m)
形状 - 道路 西側 9m
  • 南本町1丁目 売家
    上越宅地販売株式会社
  • この物件を問い合わせる/無料
  • TEL: 025-522-3838

物件詳細情報

所在階/階数 - 号室 -
販売価格 4,000,000円 方位 -
間取り DK (和室:6畳、6畳、6畳、6.5畳、8畳) (洋室:5)
D4.5 K3.5
専有面積 - バルコニー面積 -
その他面積 - 駐車場 車庫に1台
管理費 - 修繕積立金 -
引渡 相談 現況 賃貸中
仲介手数料 330,000円
おすすめ条件 -
設備 -
取引態様 一般
備考 現在、賃貸中です。
取り扱い会社

上越宅地販売株式会社

新潟県上越市南高田町1-2アサノビル1階

情報登録日 2024/08/30 次回更新予定日 2026/01/01
  • 南本町1丁目 売家
    上越宅地販売株式会社
  • この物件を問い合わせる/無料
  • TEL: 025-522-3838

この物件の地図・周辺情報・行政情報

この物件の周辺情報・行政情報を詳しく見る
【周辺情報】
物件の近くにあるコンビニや銀行・学校など、アイコン付のマップで詳しく表示できます!
【行政情報】
水道料や下水道料・ガス料金など、暮らしに関係のある情報を表示しています。

担当取扱い店舗情報

取扱い店舗画像
上越宅地販売株式会社
TEL: 025-522-3838
所在地: 新潟県上越市南高田町1-2アサノビル1階
交通: 妙高はねうまライン 南高田駅 徒歩1分
営業時間: 9:00~18:30/定休日:毎週水曜日・GW・夏季・臨時休業(9/21日曜日)・年末年始
免許番号: 新潟県知事(9)第3372号 この会社の情報を詳しく見る
所属団体名: 公社 新潟県宅地建物取引協会 上越支部
取引態様: 一般
ホームページ: http://takuhan.com/