上越・妙高・糸魚川の賃貸アパート・賃貸マンション・土地・一戸建てなど不動産情報サイト

  • らくすむ上越版 上越・妙高・糸魚川の不動産情報サイト

新潟県上越市三和区川浦496 中古一戸建て 9DK 16,800,000円の物件情報

高床式3階建の戸建! 敷地174.99坪 1997年築!

物件名/所在地 詳細 価格
三和区川浦 戸建 1997年築
新潟県上越市三和区川浦496
  • 土地面積
    :578.51㎡ /174.99坪
  • 建物面積
    :422.13㎡ /127.69坪
  • 間取り
    :9DK
  • 築年月
    :1997年9月
16,800,000
  • 三和区川浦 戸建 1997年築
    越乃エステート株式会社
  • この物件を問い合わせる/無料
  • TEL: 025-520-6623

物件画像

外観 間取り
物件画像
※画像クリックで拡大表示
北側外観
物件画像
※画像クリックで拡大表示
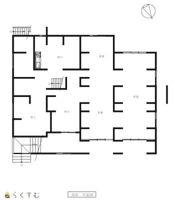
1F間取図
詳細画像


物件概要

広い敷地に駐車スペースも多くあります。
物件コード 00250-200072
物件名 三和区川浦 戸建 1997年築
交通 駅:妙高はねうまライン 高田駅から徒歩107分
物件所在地 新潟県上越市三和区川浦496
物件種別 中古一戸建て
構造 木造鉄筋コン 階建 地上3階建
建ぺい率/容積率 -
建物面積 1階 162.66㎡/ 2階 164.88㎡/ 3階 94.59㎡/ 計 422.13㎡ /127.69坪
土地面積 578.51㎡ /174.99坪
築年月 1997年9月(築28年)
入居時期 相談
用途地域 無指定 地目 宅地  (現状:宅地)
都市計画 都市計画区域外 学校区 三和小学校(972m)・三和中学校(3,410m)
形状 間口 28m × 奥行 20.5m 道路 物件は市道(幅員10.2m)から赤道を経由。
  • 三和区川浦 戸建 1997年築
    越乃エステート株式会社
  • この物件を問い合わせる/無料
  • TEL: 025-520-6623

物件詳細情報

所在階/階数 - 号室 -
販売価格 16,800,000円 方位
間取り 9DK (和室:8畳、10畳、10畳、8畳、7.5畳、7.5畳) (洋室:8、10、8)
DK8
専有面積 - バルコニー面積 -
その他面積 - 駐車場 -
管理費 - 修繕積立金 -
引渡 - 現況 空家
仲介手数料 620,400円
固定資産税/年間 87,531円
おすすめ条件 -
設備 日当り良好、閑静な住宅街、新築時図面あり、駐車3台以上可能、南向き、システムキッチン、カウンターキッチン、3口コンロ、追いだき機能付き、浴室乾燥機、バス1坪以上、温水洗浄便座、トイレ2か所以上、シャワー付き洗面台、エアコンあり、LPG、上水道、下水道、シューズBOX、2世帯向き、即引き渡し可能、田舎暮らし
取引態様 専任
備考 上水道・下水道・プロパンガス
屋根の雪は東側へ自然落下。
取り扱い会社

越乃エステート株式会社

新潟県上越市春日野1丁目7番4号オフィスYAMADA-B号

情報登録日 2025/09/18 次回更新予定日 2025/10/25
  • 三和区川浦 戸建 1997年築
    越乃エステート株式会社
  • この物件を問い合わせる/無料
  • TEL: 025-520-6623

この物件の地図・周辺情報・行政情報

この物件の周辺情報・行政情報を詳しく見る
【周辺情報】
物件の近くにあるコンビニや銀行・学校など、アイコン付のマップで詳しく表示できます!
【行政情報】
水道料や下水道料・ガス料金など、暮らしに関係のある情報を表示しています。

担当取扱い店舗情報

取扱い店舗画像
越乃エステート株式会社
TEL: 025-520-6623
所在地: 新潟県上越市春日野1丁目7番4号オフィスYAMADA-B号
交通: 春日山駅より徒歩8分
営業時間: 9:00~17:00/定休日:水・日
免許番号: 新潟県知事(1)第5592号 この会社の情報を詳しく見る
所属団体名: 公益社団法人 全日本不動産協会 新潟県本部
取引態様: 専任
ホームページ: https://koshino-e.com