上越・妙高・糸魚川の賃貸アパート・賃貸マンション・土地・一戸建てなど不動産情報サイト

  • らくすむ上越版 上越・妙高・糸魚川の不動産情報サイト

新潟県見附市本所2-7-23 中古一戸建て 4LDK 6,500,000円の物件情報

見附駅徒歩圏の中古住宅です!

物件名/所在地 詳細 価格
見附市本所2丁目 中古住宅
新潟県見附市本所2-7-23
  • 土地面積
    :231.43㎡ /70坪
  • 建物面積
    :168.89㎡ /51.08坪
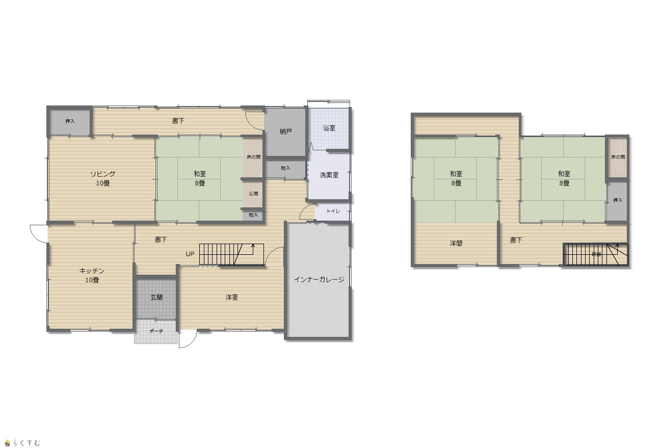
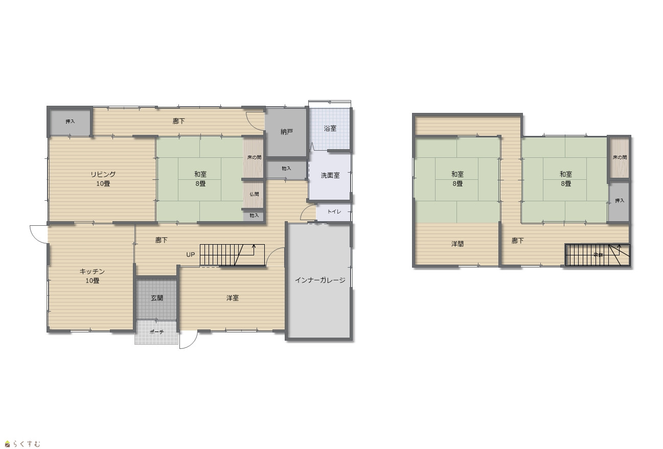
  • 間取り
    :4LDK
  • 築年月
    :1985年10月
6,500,000
  • 見附市本所2丁目 中古住宅
    ブレイン・リアルエステート合同会社
  • この物件を問い合わせる/無料
  • TEL: 0258-86-6934

物件画像

外観 間取り
物件画像
※画像クリックで拡大表示
外観
物件画像
※画像クリックで拡大表示
間取り
詳細画像


物件概要

69坪の敷地 
物件コード 00044-200684
物件名 見附市本所2丁目 中古住宅
交通 駅:信越線 見附駅から徒歩3分、バス:見附駅前から徒歩3分
物件所在地 新潟県見附市本所2-7-23
物件種別 中古一戸建て
構造 木造 階建 地上2階建
建ぺい率/容積率 60%/200%
建物面積 1階 119.21㎡/ 2階 49.68㎡/ 計 168.89㎡ /51.08坪
土地面積 231.43㎡ /70坪
築年月 1985年10月(築40年)
入居時期 相談
用途地域 第1種中高層住居専用地域 地目 宅地
都市計画 市街化区域 学校区 見附小学校(1,759m)・西中学校(1,358m)
形状 - 道路 北東側 市道 6m
  • 見附市本所2丁目 中古住宅
    ブレイン・リアルエステート合同会社
  • この物件を問い合わせる/無料
  • TEL: 0258-86-6934

物件詳細情報

所在階/階数 - 号室 -
販売価格 6,500,000円 方位 北東
間取り 4LDK
専有面積 - バルコニー面積 -
その他面積 - 駐車場 -
管理費 - 修繕積立金 -
引渡 - 現況 空家
仲介手数料 330,000円
おすすめ条件 -
設備 日当り良好、都市ガス、上水道、下水道
取引態様 一般
備考 ■駐車場は1台分しかありません ■現況有姿での引渡し売主による契約不適合責任は免責 ■固定資産税 年58,500円 ■解体見積もり承ります ■
取り扱い会社

ブレイン・リアルエステート合同会社

新潟県長岡市大島本町3丁目10番8号202号室

情報登録日 2025/08/22 次回更新予定日 2026/05/11
  • 見附市本所2丁目 中古住宅
    ブレイン・リアルエステート合同会社
  • この物件を問い合わせる/無料
  • TEL: 0258-86-6934

この物件の地図・周辺情報・行政情報

この物件の周辺情報・行政情報を詳しく見る
【周辺情報】
物件の近くにあるコンビニや銀行・学校など、アイコン付のマップで詳しく表示できます!
【行政情報】
水道料や下水道料・ガス料金など、暮らしに関係のある情報を表示しています。

担当取扱い店舗情報

取扱い店舗画像
ブレイン・リアルエステート合同会社
TEL: 0258-86-6934
所在地: 新潟県長岡市大島本町3丁目10番8号202号室
交通:
営業時間: 9:30~18:00/定休日:水曜日、日曜日
免許番号: 新潟県知事(4)第4978号 この会社の情報を詳しく見る
所属団体名: ブレインリアルエステート合同会社
取引態様: 一般
ホームページ: http://www.brain-niigata.co.jp