上越・妙高・糸魚川の賃貸アパート・賃貸マンション・土地・一戸建てなど不動産情報サイト
ラクチン
上越・妙高・糸魚川の
「お部屋探し」なら
らくすむにお任せください!
借りたい
物件を探す
アパート・マンション・戸建て
駐車場
貸土地
店舗
事務所
倉庫・工場
小・中学校区から探す
アパート・マンション・戸建て
駐車場
貸土地
店舗
事務所
倉庫・工場
買いたい
物件を探す
売り土地
新築一戸建て
中古一戸建て
新築分譲マンション
中古マンション
その他
小・中学校区から探す
売り土地
新築一戸建て
中古一戸建て
新築分譲マンション
中古マンション
その他
売りたい
マンション
一戸建て
土地
不動産業者一覧
上越市の不動産業者
妙高市の不動産業者
糸魚川市の不動産業者
物件リクエスト
ホーム
>
検索方法選択
>
ランドマーク指定
> 物件一覧
全エリア
の
貸事務所
一覧
53件
該当しました。
<前のページ
1
2
3
表示切替:
一覧表示
/
間取り表示
/
地図表示
並び替え:
家賃が安い順
家賃が高い順
築年数が新しい順
新着順
画像
物件名
所在地
取扱店
面積
間取り
所在階
築年数
方位
賃料
管理費等
共益費
敷金
保証金
礼金
種別
構造
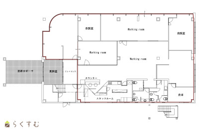
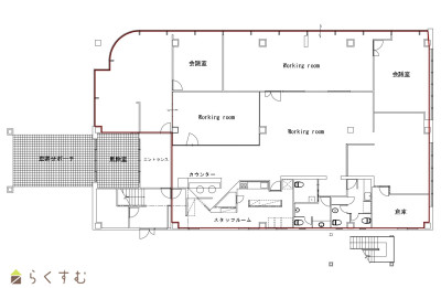
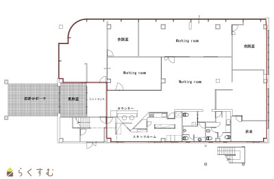
桜町 貸事務所
新潟県上越市桜町51番地
上越宅地販売株式会社
198.74㎡
(60.11坪)
-
32年
-
18
万円
なし
なし
1ヶ月
なし
1ヶ月
事務所
木造
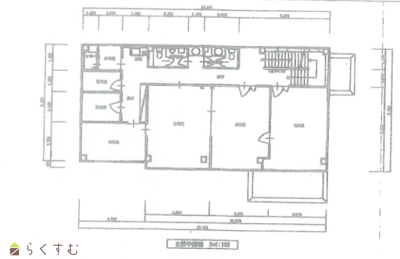
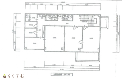
高田館ビル(2階一括貸し)
新潟県上越市本町6-1-23
ピタットハウス上越店 日建不動産
283.94㎡
(85.89坪)
-
2階
不詳
-
19.8
万円
なし
なし
なし
なし
なし
事務所
鉄筋コン
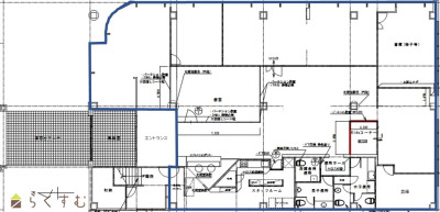
寺町貸事務所
新潟県上越市寺町887-1
株式会社ミナト
216.54㎡
(65.5坪)
-
30年
-
22
万円
なし
なし
2ヶ月
なし
なし
事務所
木造
新光町丸渡貸事務所1棟
新潟県上越市新光町2丁目10-1
三慶商事株式会社
199.91㎡
(60.47坪)
-
30年
-
22
万円
なし
なし
22万円
なし
なし
事務所
鉄骨
寺町倉庫付き事務所
新潟県上越市寺町887-1
ピタットハウス上越店 日建不動産
256.01㎡
(77.44坪)
-
31年
-
23.5
万円
なし
なし
2ヶ月
なし
1ヶ月
事務所
木造
大同生命上越ビル4F
401号室
新潟県上越市西城町3丁目5番24号大同生命上越ビル4階
株式会社阿部建設 上越支店
172.94㎡
(52.31坪)
-
4階
41年
-
28.77
万円
なし
あり
6ヶ月
なし
なし
事務所
鉄骨鉄筋コン
山吉ビル1F-B
新潟県上越市藤巻8-59山吉ビル1階
株式会社マルケー不動産
179.86㎡
(54.4坪)
-
1階
37年
-
33
万円
なし
なし
4ヶ月
なし
なし
事務所
鉄骨
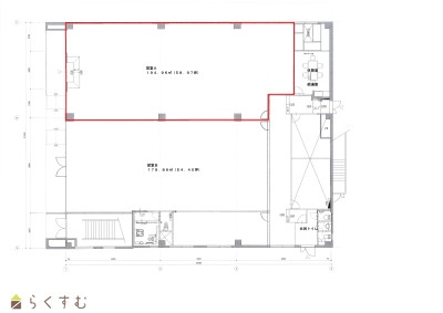
北城町4丁目 貸事務所
新潟県上越市北城町4-4-3
ピタットハウス上越店 日建不動産
790.2㎡
(239.03坪)
-
51年
-
33
万円
なし
なし
2ヶ月
なし
なし
事務所
鉄骨
山吉ビル1F-A
新潟県上越市藤巻8-59山吉ビル1階
株式会社マルケー不動産
194.96㎡
(58.97坪)
-
1階
37年
-
33
万円
なし
なし
4ヶ月
なし
なし
事務所
鉄骨
大同生命上越ビル5F
新潟県上越市西城町3丁目5番24号大同生命上越ビル5階
株式会社阿部建設 上越支店
239.05㎡
(72.31坪)
-
5階
41年
-
39.77
万円
なし
あり
6ヶ月
なし
なし
事務所
鉄骨鉄筋コンクリート・鉄筋コンクリート造陸屋根
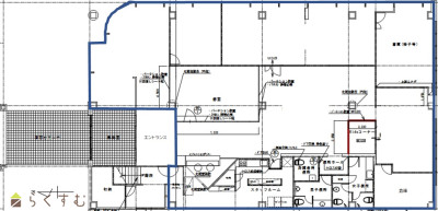
上越市北城四丁目ビル
新潟県上越市北城町四丁目4番3号
合同会社エフアセット
790.02㎡
(238.98坪)
-
51年
-
55
万円
なし
なし
2ヶ月
なし
2ヶ月
事務所
鉄骨
春日山管財ビル 1F部分
新潟県上越市大豆1丁目8-43
有限会社 管財
404.52㎡
(122.36坪)
-
1階
28年
-
66
万円
55,000円/月
なし
360万円
なし
なし
事務所
鉄骨
【立地◎】春日山管財ビル 1F
新潟県上越市大豆1丁目8番43号1F
株式会社 お不動さん
404.52㎡
(122.36坪)
-
1階
28年
-
66
万円
55,000円/月
なし
360万円
なし
なし
事務所
鉄骨
表示切替:
一覧表示
/
間取り表示
/
地図表示
並び替え:
家賃が安い順
家賃が高い順
築年数が新しい順
新着順
53件
該当しました。
<前のページ
1
2
3
0件
がマッチ
基本条件
物件種別
事務所
賃料
下限なし
3.0万円
3.5万円
4.0万円
4.5万円
5.0万円
5.5万円
6.0万円
6.5万円
7.0万円
7.5万円
8.0万円
8.5万円
9.0万円
9.5万円
10万円
11万円
12万円
13万円
14万円
15万円
16万円
17万円
18万円
19万円
20万円
30万円
40万円
50万円
100万円
~
上限なし
3.0万円
3.5万円
4.0万円
4.5万円
5.0万円
5.5万円
6.0万円
6.5万円
7.0万円
7.5万円
8.0万円
8.5万円
9.0万円
9.5万円
10万円
11万円
12万円
13万円
14万円
15万円
16万円
17万円
18万円
19万円
20万円
30万円
40万円
50万円
100万円
管理費を含む
礼金なし
敷金なし
間取り
ワンルーム
1K
1DK
1LDK
2K
2DK
2LDK
3K
3DK
3LDK
4K
4DK
4LDK以上
面積
下限なし
20㎡
30㎡
40㎡
50㎡
60㎡
70㎡
80㎡
90㎡
100㎡
~
上限なし
20㎡
30㎡
40㎡
50㎡
60㎡
70㎡
80㎡
90㎡
100㎡
築年数
指定なし
新築
3年以内
5年以内
10年以内
15年以内
20年以内
方位
北
北東
東
南東
南
南西
西
北西
おすすめ条件
女性限定
男性限定
学生可・相談
二人入居可・相談
シニア(60歳以上)入居可・相談
ペット可・相談
事務所利用可・相談
ルームシェア可・相談
情報公開日
指定なし
本日
3日以内
1週間以内
1ヶ月以内
0件
がマッチ
人気のあるこだわり条件
1階(20)
最上階(10)
2階以上(23)
融雪設備あり(12)
オートロック(2)
24時間セキュリティー(11)
防犯カメラ(6)
管理室あり(6)
光ファイバー(1)
エアコン(38)
男女トイレ別(19)
即引き渡し可(27)
フリーレント(詳細は備考欄)(1)
居抜き(1)
エレベーター(7)
給湯(22)
OAフロア(5)
駐車場あり(40)
条件に合った物件数は、
0 件
です。
立地・環境
1階(20)
最上階(10)
2階以上(23)
駐車場・外部
融雪設備あり(12)
管理・防犯
オートロック(2)
24時間セキュリティー(11)
防犯カメラ(6)
管理室あり(6)
設備
光ファイバー(1)
エアコン(38)
男女トイレ別(19)
入居・費用・引渡・条件
即引き渡し可(27)
フリーレント(詳細は備考欄)(1)
居抜き(1)
その他
エレベーター(7)
給湯(22)
OAフロア(5)
駐車場あり(40)
条件に合った物件数は、
0 件
です。