駅近く☆駐車場5台分・消雪設備有り☆
| 物件名
							 所在地  | 
							面積
							 間取り 所在階  | 
							築年数
							 方位  | 
							賃料
							 管理費等 共益費  | 
							敷金
							 保証金 礼金  | 
							種別
							 構造  | 
						
|---|---|---|---|---|---|
| 杉山ビル 1階事務所 新潟県上越市中通町5番7号  | 107.62㎡ (32.55坪) - 1階  | 40年 -  | 8万円 なし なし  | 3ヶ月 なし なし  | 事務所 鉄骨  | 
						
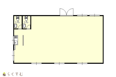
| 外観 | 間取り | 
|---|---|
| 
								 ※画像クリックで拡大表示 外観 
							 | 
							
								![]() ※画像クリックで拡大表示 間取り 
							 | 
						
| 詳細画像 | |
| 
								 | 
						|
| 物件コード | 00308-100638 | ||
|---|---|---|---|
| 物件名 | 杉山ビル 1階事務所 | ||
| 交通 | 駅:妙高はねうまライン 南高田駅から徒歩2分、バス:南高田町から徒歩2分 | ||
| 所在地 | 新潟県上越市中通町5番7号 | ||
| 物件種別 | 事務所 | ||
| 総戸数 | - | ||
| 構造 | 鉄骨 | 階建 | 地上3階建 | 
| 所在階/階数 | 1階/3階 | 号室 | - | 
| 面積 | 107.62㎡ /32.55坪 | 方位 | - | 
| 間取り | - | ||
| 賃料 | 8万円/月 | 管理費 | なし | 
| 礼金 | なし | 敷金 | 3ヶ月 | 
| 共益費 | なし | 修繕積立金 | なし | 
| ほか初期費用 | なし | その他諸費用 | なし | 
| 更新料 | なし | 火災保険 | 要加入 | 
| 保証金 | なし | 町内費 | 実費 | 
| 駐車場 | 5台(追加 応相談) | 保証会社 | 
							   区分:加入要 月額総賃料の77%(契約時)申込内容で変更有  | 
						
| 連帯保証人 | 
							   区分:不要 -  | 
						||
| 仲介手数料 | 88,000円 | ||
| 築年月 | 1985年10月(築40年) | ||
| おすすめ条件 | - | ||
| 学校区 | 高田西小学校(1,237m)・城西中学校(319m) | ||
| 設備 | 融雪設備あり、エアコン、駐車場あり | ||
| 入居時期 | 即入居可 | ||
| 取引態様 | 仲介 | ||
| 備考 | - | ||
| 取り扱い会社 | 
								 上越宅地販売株式会社 新潟県上越市南高田町1-2アサノビル1階  | 
						||
| 情報登録日 | 2025/09/13 | 次回更新予定日 | 2025/11/18 | 
| 
																		ローソン 上越中通町店(コンビニ)まで140m 上越地域医療センター病院(病院)まで570m  | 
																
																		高田中通簡易郵便局(郵便局)まで110m | 
															
※カメラのアイコンがある場合は、マウスをポイントするとその施設の画像がご覧いただけます。
| TEL: | 025-522-3838 | |
|---|---|---|
| 所在地: | 新潟県上越市南高田町1-2アサノビル1階 | |
| 交通: | 妙高はねうまライン 南高田駅 徒歩1分 | |
| 営業時間: | 9:00~18:30/定休日:毎週水曜日・GW・夏季・臨時休業(9/21日曜日)・年末年始 | |
| 免許番号: | 新潟県知事(9)第3372号 | 
										
											 | 
								
| 所属団体名: | 公社 新潟県宅地建物取引協会 上越支部 | |
| 取引態様: | 仲介 | |
| ホームページ: | http://takuhan.com/ | |