上越・妙高・糸魚川の賃貸アパート・賃貸マンション・土地・一戸建てなど不動産情報サイト

  • らくすむ上越版 上越・妙高・糸魚川の不動産情報サイト

新潟県妙高市柳井田町4丁目11番16号 事務所 9.438万円の物件情報

幹線道路沿い交通アクセス良好!

物件名
所在地
面積
間取り
所在階
築年数
方位
賃料
管理費等
共益費
敷金
保証金
礼金
種別
構造
妙高市柳井田4丁目 貸事務所 2階
2号室
新潟県妙高市柳井田町4丁目11番16号
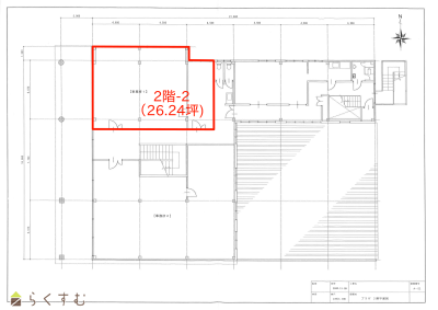
86.74㎡
(26.23坪)
-
2階
不詳
-
9.438万円
なし
なし
25.74万円
なし
なし
事務所
鉄骨
  • 妙高市柳井田4丁目 貸事務所 2階
    上越宅地販売株式会社
  • この物件を問い合わせる/無料
  • TEL: 025-522-3838

物件画像

外観 間取り
物件画像
※画像クリックで拡大表示
外観
物件画像
※画像クリックで拡大表示
図面
詳細画像


物件概要

物件コード 00308-100626
物件名 妙高市柳井田4丁目 貸事務所 2階
交通 駅:妙高はねうまライン 北新井駅から徒歩11分、バス:柳井田から徒歩2分
所在地 新潟県妙高市柳井田町4丁目11番16号
物件種別 事務所
総戸数 -
構造 鉄骨 階建 地上2階建
所在階/階数 2階/2階 号室 2号室
面積 86.74㎡ /26.23坪 方位 -
間取り -
賃料 9.438万円/月 管理費 なし
礼金 なし 敷金 25.74万円
共益費 なし 修繕積立金 なし
ほか初期費用 なし その他諸費用 なし
更新料 なし 火災保険 要加入
保証金 なし 町内費 実費
駐車場 敷地内 要確認
保証会社 区分:加入要
月額総賃料の77%(契約時) 事務手数料2,200円
連帯保証人 区分:不要
-
仲介手数料 94,380円
築年月 不詳
おすすめ条件 -
学校区 新井北小学校(922m)・新井中学校(4,659m)
設備 2階以上、エアコン、男女トイレ別、即引き渡し可、駐車場あり
入居時期 相談
取引態様 仲介
備考 -
取り扱い会社

上越宅地販売株式会社

新潟県上越市南高田町1-2アサノビル1階

情報登録日 2025/11/08 次回更新予定日 2025/12/10
  • 妙高市柳井田4丁目 貸事務所 2階
    上越宅地販売株式会社
  • この物件を問い合わせる/無料
  • TEL: 025-522-3838

この物件の地図・周辺情報・行政情報

この物件の周辺情報・行政情報を詳しく見る
【周辺情報】
物件の近くにあるコンビニや銀行・学校など、アイコン付のマップで詳しく表示できます!
【行政情報】
水道料や下水道料・ガス料金など、暮らしに関係のある情報を表示しています。
セブン-イレブン 妙高栗原店(コンビニ)まで180m
業務スーパー 新井店(スーパー)まで160m
新井信用金庫 北支店(銀行)まで570m
新井北郵便局(郵便局)まで820m

※カメラのアイコンがある場合は、マウスをポイントするとその施設の画像がご覧いただけます。


担当取扱い店舗情報

取扱い店舗画像
上越宅地販売株式会社
TEL: 025-522-3838
所在地: 新潟県上越市南高田町1-2アサノビル1階
交通: 妙高はねうまライン 南高田駅 徒歩1分
営業時間: 9:00~18:30/定休日:毎週水曜日・GW・夏季・臨時休業(9/21日曜日)・年末年始
免許番号: 新潟県知事(9)第3372号 この会社の情報を詳しく見る
所属団体名: 公社 新潟県宅地建物取引協会 上越支部
取引態様: 仲介
ホームページ: http://takuhan.com/