売買滝寺建売 詳細

外観
外観
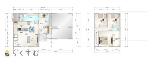
間取り
間取り
その他の画像
キッチン
子供部屋
キッチン
キッチン
リビング
トイレ
玄関
玄関
リビング
間取り
洗面所
リビング
バスルーム
玄関
駐車場
印刷用地図
物件詳細へ戻る
Copyright (C) 株式会社 コモンライフ・コーポレーション. All Rights Reserved.
不動産検索サイト「らくすむ」及び関連サイトに記載の不動産情報は、会員規約に則り、情報提供会社様の責任のもとに発信されております。
不動産の賃借、購入に関しては賃借者、購入者ご自身が情報を確認され、会社企業様から説明を受けられたうえで判断をお願いいたします。
不動産検索サイト「らくすむ」及び関連サイトに記載の不動産情報、写真、デザイン、コンテンツなどの無断転載・転用・複製など禁止します。