
滝寺建売 詳細
物件画像を詳しく見る

南向き・角地の新築戸建てです! 1部ご希望クロス貼替可能です。
物件概要
ルームツアー動画公開中 https://www.instagram.com/p/DPnuADfkTDD/
-
物件コード
00282-200017
-
物件名
滝寺建売
-
交通
駅:妙高はねうまライン 春日山駅から徒歩33分、バス:上越自動車学校前から徒歩4分
-
所在地
新潟県上越市滝寺2444-18
物件へのルート表示
-
物件種別
新築一戸建て
-
構造
木造
-
階建
地上2階建
-
建ぺい率/容積率
60%/200%
-
建物面積
135.2㎡
/40.89坪
-
土地面積
191㎡
/57.77坪
-
築年月
2025年9月(築7ヶ月)
-
入居時期
即入居可
-
用途地域
第1種中高層住居専用地域
-
地目
宅地
-
都市計画
市街化区域
-
形状
-
-
道路
東側:幅員5.9m 南側:幅員6.0m
物件詳細情報
-
所在階/階数
-
-
号室
-
-
販売価格
29,500,000円
-
方位
南
-
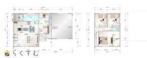
間取り
3LDK (洋室:5.6、5.6、7.3)、LDK19.7、ウォークインクローゼット3.6帖
-
専有面積
-
-
バルコニー面積
-
-
その他面積
-
-
駐車場
-
-
管理費
-
-
修繕積立金
-
-
引渡
-
現況
空家
-
仲介手数料
なし
-
おすすめ条件
-
-
学校区
高志小学校(1,378m)・春日中学校(2,263m)
-
設備
角地、前面道路6m以上、日当り良好、閑静な住宅街、瑕疵担保保険付き、建物確認・完了検査済証あり、LDK15畳以上、全室フローリング、駐車場2台以上、南向き、TVインターホン、複層ガラス、ディンプルキー、システムキッチン、カウンターキッチン、IHクッキングヒーター、食器洗浄乾燥機、3口コンロ、追いだき機能付き、バス1坪以上、温水洗浄便座、シャワー付き洗面台、エアコン、オール電化、上水道、下水道、電気、ウォークインクローゼット、全居室収納あり、シューズインクローゼット、即引き渡し可能
-
取引態様
売主
-
情報登録日
2026/04/18
-
次回更新予定日
2026/05/06
備考
オープンガレージ・オール電化・アイランドキッチン・ランドリースペース・ウォークインクローゼット・シューズクローク・パントリー
取扱い会社
ミニミニFC上越店 ㈱インカムハウジング
Copyright (C) 株式会社 コモンライフ・コーポレーション. All Rights Reserved.
不動産検索サイト「らくすむ」及び関連サイトに記載の不動産情報は、会員規約に則り、情報提供会社様の責任のもとに発信されております。
不動産の賃借、購入に関しては賃借者、購入者ご自身が情報を確認され、会社企業様から説明を受けられたうえで判断をお願いいたします。
不動産検索サイト「らくすむ」及び関連サイトに記載の不動産情報、写真、デザイン、コンテンツなどの無断転載・転用・複製など禁止します。