上越・妙高・糸魚川の賃貸アパート・賃貸マンション・土地・一戸建てなど不動産情報サイト

  • らくすむ上越版 上越・妙高・糸魚川の不動産情報サイト

新潟県上越市西城町3丁目9番7号 中古一戸建て 5DK 7,800,000円の物件情報

部屋数が多く広々とした間取りです!

物件名/所在地 詳細 価格
西城町3丁目 中古住宅
新潟県上越市西城町3丁目9番7号
  • 土地面積
    :234.98㎡ /71.08坪
  • 建物面積
    :144.94㎡ /43.84坪
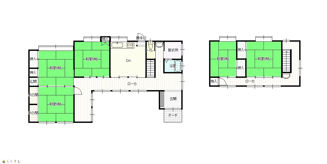
  • 間取り
    :5DK
  • 築年月
    :1981年11月
7,800,000
  • 西城町3丁目 中古住宅
    株式会社カンエー・ハウジング
  • この物件を問い合わせる/無料
  • TEL: 025-527-6541

物件画像

外観 間取り
物件画像
※画像クリックで拡大表示
外観写真
物件画像
※画像クリックで拡大表示
間取り図
詳細画像


物件概要

部屋数が多く広々とした間取りです!
物件コード 00269-200143
物件名 西城町3丁目 中古住宅
交通 駅:妙高はねうまライン 高田駅から徒歩14分
物件所在地 新潟県上越市西城町3丁目9番7号
物件種別 中古一戸建て
構造 木造 階建 地上2階建
建ぺい率/容積率 60%/200%
建物面積 1階 101.49㎡/ 2階 43.45㎡/ 計 144.94㎡ /43.84坪
土地面積 234.98㎡ /71.08坪
築年月 1981年11月(築44年)
入居時期 即入居可
用途地域 第1種低層住居専用地域 地目 宅地  (現状:宅地)
都市計画 市街化区域 学校区 大町小学校(207m)・城東中学校(1,180m)
形状 - 道路 西 4m
  • 西城町3丁目 中古住宅
    株式会社カンエー・ハウジング
  • この物件を問い合わせる/無料
  • TEL: 025-527-6541

物件詳細情報

所在階/階数 - 号室 -
販売価格 7,800,000円 方位 -
間取り 5DK (和室:8畳、8畳、8畳、8畳、6畳)
DK
専有面積 - バルコニー面積 -
その他面積 - 駐車場 -
管理費 - 修繕積立金 -
引渡 - 現況 空家
仲介手数料 330,000円
おすすめ条件 -
設備 閑静な住宅街、エアコンあり、都市ガス、上水道、下水道、即引き渡し可能
取引態様 専任
備考 ・南側の私道の持分あり(1/2)
・前面道路に消雪パイプあり
取り扱い会社

株式会社カンエー・ハウジング

新潟県上越市春日山町3-18-44

情報登録日 2025/09/18 次回更新予定日 2026/05/11
  • 西城町3丁目 中古住宅
    株式会社カンエー・ハウジング
  • この物件を問い合わせる/無料
  • TEL: 025-527-6541

この物件の地図・周辺情報・行政情報

この物件の周辺情報・行政情報を詳しく見る
【周辺情報】
物件の近くにあるコンビニや銀行・学校など、アイコン付のマップで詳しく表示できます!
【行政情報】
水道料や下水道料・ガス料金など、暮らしに関係のある情報を表示しています。
ローソン 上越高田駅前店(コンビニ)まで510m
セブン-イレブン 上越北城店(コンビニ)まで760m
ナルス 北城店(スーパー)まで710m
ウエルシア上越本町店 (調剤薬局)(ドラッグストア)まで590m
(医)知命堂病院(病院)まで370m
第四北越銀行 高田営業部(銀行)まで200m
(株)大光銀行 高田支店ローンスクエア上越(銀行)まで470m
八十二銀行 高田支店(銀行)まで340m
上越信用金庫 高田中央支店(銀行)まで690m
新潟県労働金庫 高田支店(銀行)まで740m
高田郵便局(郵便局)まで730m

※カメラのアイコンがある場合は、マウスをポイントするとその施設の画像がご覧いただけます。


担当取扱い店舗情報

取扱い店舗画像
株式会社カンエー・ハウジング
TEL: 025-527-6541
所在地: 新潟県上越市春日山町3-18-44
交通: 妙高はねうまライン 春日山駅
営業時間: 9:00から18:00/定休日:毎週水曜日・日曜日
免許番号: 新潟県知事(8)第3548号 この会社の情報を詳しく見る
所属団体名: 公社 新潟県宅地建物取引協会 上越支部
取引態様: 専任
ホームページ: https://www.kan-eh.jp/