◆上越市藤巻◆144.18㎡のゆとりのある広さの事務所
| 物件名
所在地 |
面積
間取り 所在階 |
築年数
方位 |
賃料
管理費等 共益費 |
敷金
保証金 礼金 |
種別
構造 |
|---|---|---|---|---|---|
| 上越市藤巻 貸事務所 新潟県上越市藤巻9-5 | 144.18㎡ (43.61坪) - 2階 | 26年 - | 19.8万円 なし なし | 2ヶ月 なし なし | 事務所 鉄骨 |
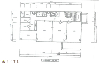
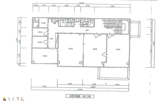
| 外観 | 間取り |
|---|---|
![]() ※画像クリックで拡大表示 外観
|
![]() ※画像クリックで拡大表示 間取り
|
| 詳細画像 | |
|
|
|
| 男女別トイレ2カ所・給湯室完備、プロパンガス対応。駐車スペース5台分あり◎ 2階ご契約で3階も利用可能! 元デイサービス・介護系事務所として使用されていたため、福祉・医療系にもおすすめ。 隣接する約12坪の倉庫もご希望により貸出可能。 現在1階はパソコン教室として利用中。 多目的に活用できる好立地物件です! | |||
| 物件コード | 00297-100044 | ||
|---|---|---|---|
| 物件名 | 上越市藤巻 貸事務所 | ||
| 交通 | 駅:妙高はねうまライン 春日山駅から徒歩22分、バス:藤巻から徒歩3分 | ||
| 所在地 | 新潟県上越市藤巻9-5 | ||
| 物件種別 | 事務所 | ||
| 総戸数 | - | ||
| 構造 | 鉄骨 | 階建 | 地上3階建 |
| 所在階/階数 | 2階/3階 | 号室 | - |
| 面積 | 144.18㎡ /43.61坪 | 方位 | - |
| 間取り | - | ||
| 賃料 | 19.8万円/月 | 管理費 | なし |
| 礼金 | なし | 敷金 | 2ヶ月 |
| 共益費 | なし | 修繕積立金 | なし |
| ほか初期費用 | なし | その他諸費用 | なし |
| 更新料 | なし | 火災保険 | なし |
| 保証金 | なし | 町内費 | なし |
| 駐車場 | 5台分程度 | 保証会社 |
区分:指定なし - |
| 連帯保証人 |
区分:要 - |
||
| 仲介手数料 | なし | ||
| 築年月 | 1999年3月(築26年) | ||
| おすすめ条件 | 法人:可、事務所利用:可 | ||
| 学校区 | 高志小学校(712m)・春日中学校(1,927m) | ||
| 設備 | 2階以上、男女トイレ別、給湯 | ||
| 入居時期 | 相談 | ||
| 取引態様 | 仲介 | ||
| 備考 | - | ||
| 取り扱い会社 |
田中不動産株式会社 新潟県上越市土橋1154-1ワグリオフィスA |
||
| 情報登録日 | 2025/12/12 | 次回更新予定日 | 2026/01/03 |
|
セブン-イレブン 上越土橋店(コンビニ)まで460m クスリのアオキ 藤巻店(ドラッグストア)まで420m セブン-イレブン 上越土橋店(コンビニ)までm クスリのアオキ 藤巻店(ドラッグストア)までm たかし薬局(ドラッグストア)までm あおば薬局 木田店(ドラッグストア)までm はまだ皮ふ科(病院)までm JAえちご上越 金融共済部融資貯金課(銀行)までm |
JAえちご上越 金融共済部貯金業務課(銀行)までm JAえちご上越 監査室(銀行)までm JAえちご上越 経済部経済課(銀行)までm JAえちご上越 春日支店(銀行)までm JAえちご上越 経済部中央物流センター(銀行)までm セブン銀行ATM(銀行)までm 上越信用金庫 はれまち支店(銀行)までm |
※カメラのアイコンがある場合は、マウスをポイントするとその施設の画像がご覧いただけます。
| TEL: | 025-512-5001 | |
|---|---|---|
| 所在地: | 新潟県上越市土橋1154-1ワグリオフィスA | |
| 交通: | 妙高はねうまライン 高田駅 | |
| 営業時間: | 9:00~18:00/定休日:土・日・祝 | |
| 免許番号: | 大臣免許(2)第9635号 |
|
| 所属団体名: | 公社 新潟県宅地建物取引協会 上越支部 | |
| 取引態様: | 仲介 | |
| ホームページ: | http://www.tanakafudousan-inc.co.jp | |