上越・妙高・糸魚川の賃貸アパート・賃貸マンション・土地・一戸建てなど不動産情報サイト

  • らくすむ上越版 上越・妙高・糸魚川の不動産情報サイト

新潟県上越市本町6-1-23 事務所 7.7万円の物件情報

高田駅から徒歩5分の立地

物件名
所在地
面積
間取り
所在階
築年数
方位
賃料
管理費等
共益費
敷金
保証金
礼金
種別
構造
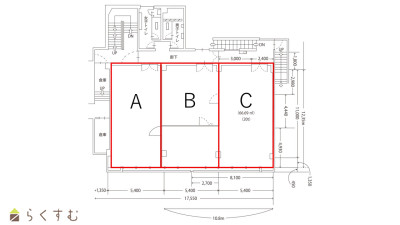
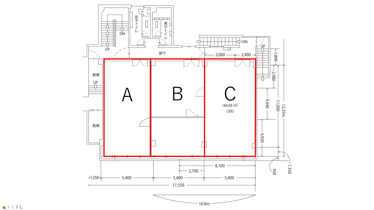
高田館ビル(分割貸し)
新潟県上越市本町6-1-23
66.69㎡
(20.17坪)
-
2階
不詳
-
7.7万円
なし
なし
2ヶ月
なし
なし
事務所
鉄筋コン
  • 高田館ビル(分割貸し)
    ピタットハウス上越店 日建不動産
  • この物件を問い合わせる/無料
  • TEL: 025-544-6015

物件画像

外観 間取り
物件画像
※画像クリックで拡大表示
外観
物件画像
※画像クリックで拡大表示
間取り
詳細画像


物件概要

3区画あり。フリーレント相談可能です。 共用トイレ・ミニキッチンはリフォーム済み。 ワンフロア一括での貸出しも可能。まずはお問合せください。
物件コード 00263-100131
物件名 高田館ビル(分割貸し)
交通 駅:高田から徒歩5分
所在地 新潟県上越市本町6-1-23
物件種別 事務所
総戸数 -
構造 鉄筋コン 階建 地上4階建
所在階/階数 2階/4階 号室 -
面積 66.69㎡ /20.17坪 方位 -
間取り -
賃料 7.7万円/月 管理費 なし
礼金 なし 敷金 2ヶ月
共益費 なし 修繕積立金 なし
ほか初期費用 なし その他諸費用 なし
更新料 なし 火災保険 借家人賠償責任保障付きテナント保険:加入要
保証金 なし 町内費 直接支払い
駐車場 3台可能。追加分ご相談ください。消雪設備あり
保証会社 区分:加入要
初回保証料:賃料等合計の100%、継続保証料:1年毎に賃料等合計の10%。※最低保証料あり
連帯保証人 区分:要
-
仲介手数料 77,000円
築年月 不詳
おすすめ条件 法人:可、事務所利用:可
学校区 大町小学校(403m)
設備 2階以上、融雪設備あり、男女トイレ別、即引き渡し可、駐車場あり
入居時期 即入居可
取引態様 仲介
備考 1階は株式会社新潟ビルサービス 上越営業所
◆店舗・事務所はテナントショップ上越でお探しください!◆
取り扱い会社

ピタットハウス上越店 日建不動産

新潟県上越市春日新田1-20-8

情報登録日 2025/10/17 次回更新予定日 2026/06/08
  • 高田館ビル(分割貸し)
    ピタットハウス上越店 日建不動産
  • この物件を問い合わせる/無料
  • TEL: 025-544-6015

この物件の地図・周辺情報・行政情報

この物件の周辺情報・行政情報を詳しく見る
【周辺情報】
物件の近くにあるコンビニや銀行・学校など、アイコン付のマップで詳しく表示できます!
【行政情報】
水道料や下水道料・ガス料金など、暮らしに関係のある情報を表示しています。

担当取扱い店舗情報

取扱い店舗画像
ピタットハウス上越店 日建不動産
TEL: 025-544-6015
所在地: 新潟県上越市春日新田1-20-8
交通:
営業時間: 9:00~18:00/定休日:水・日・祝
免許番号: 新潟県知事(10)第3031号 この会社の情報を詳しく見る
所属団体名: 公社 新潟県宅地建物取引協会 上越支部
取引態様: 仲介
ホームページ: https://www.pitat-j.com/