国道8号線沿い 平成28年9月リフォーム済ヽ(^o^)丿 厨房設備があり、イベントハウス・フィットネスクラブ・ネットカフェ・レストランなど最適! 事務所スペース、厨房施設有
| 物件名
所在地 |
面積
間取り 所在階 |
築年数
方位 |
賃料
管理費等 共益費 |
敷金
保証金 礼金 |
種別
構造 |
|---|---|---|---|---|---|
| 下源入貸店舗B 上越市大字下源入500 | 433.62㎡ (131.17坪) - - | 43年 - | 39.6万円 なし なし | 118.8万円 なし なし | 店舗 鉄骨 |
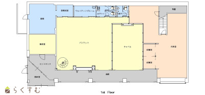
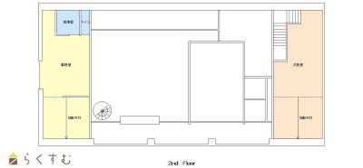
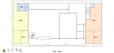
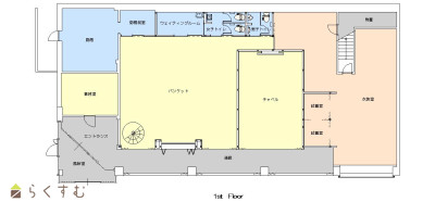
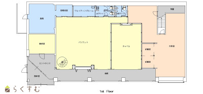
| 外観 | 間取り |
|---|---|
![]() ※画像クリックで拡大表示 駐車スペース約18台付ヽ(^o^)丿
|
![]() ※画像クリックで拡大表示 |
| 詳細画像 | |
|
|
|
| 物件コード | 00238-100259 | ||
|---|---|---|---|
| 物件名 | 下源入貸店舗B | ||
| 交通 | 駅:妙高はねうまライン 直江津駅から徒歩29分、バス:下門前入口から徒歩4分 | ||
| 所在地 | 上越市大字下源入500 | ||
| 物件種別 | 店舗 | ||
| 総戸数 | - | ||
| 構造 | 鉄骨 | 階建 | 地上2階建 |
| 所在階/階数 | - | 号室 | - |
| 面積 | 433.62㎡ /131.17坪 | 方位 | - |
| 間取り | - | ||
| 賃料 | 39.6万円/月 | 管理費 | なし |
| 礼金 | なし | 敷金 | 118.8万円 |
| 共益費 | なし | 修繕積立金 | なし |
| ほか初期費用 | なし | その他諸費用 | なし |
| 更新料 | なし | 火災保険 | 相当額 |
| 保証金 | なし | 町内費 | 相当額 |
| 駐車場 | 15台込 | 保証会社 |
区分:指定なし - |
| 連帯保証人 |
区分:要 - |
||
| 仲介手数料 | なし | ||
| 築年月 | 1983年5月(築43年) | ||
| おすすめ条件 | - | ||
| 学校区 | 有田小学校(1,027m)・直江津東中学校(1,290m) | ||
| 設備 | 1階、男女トイレ別、飲食店可、居抜き、駐車場あり | ||
| 入居時期 | 令和6年12月上旬予定 | ||
| 取引態様 | 貸主 | ||
| 備考 | - | ||
| 取り扱い会社 |
日成商事株式会社 新潟県上越市木田1-8-11 |
||
| 情報登録日 | 2025/06/23 | 次回更新予定日 | 2026/05/25 |
|
ローソン 上越下門前店(コンビニ)まで340m セブン-イレブン 上越下門前店(コンビニ)まで290m デイリーヤマザキ 上越下源入店(コンビニ)まで400m セブン-イレブン 上越下源入店(コンビニ)まで720m イチコスーパー 直江津店(スーパー)まで400m (有)ホウライ 事業本部(ドラッグストア)まで200m メッツ有田薬局(ドラッグストア)まで550m 共栄堂薬局直江津店(ドラッグストア)まで460m (有)吉岡薬局(ドラッグストア)まで650m |
上越下門前薬局(ドラッグストア)まで960m トリム薬局 春日新田店(ドラッグストア)まで730m つちや耳鼻咽喉科(病院)まで490m たにし整形外科クリニック(病院)まで510m 古川内科医院(病院)まで730m 川端内科消化器科医院(病院)まで830m セブン銀行ATM(銀行)まで710m 第四北越銀行 直江津支店(銀行)まで810m |
※カメラのアイコンがある場合は、マウスをポイントするとその施設の画像がご覧いただけます。
| TEL: | 025-524-6441 | |
|---|---|---|
| 所在地: | 新潟県上越市木田1-8-11 | |
| 交通: | 妙高はねうまライン春日山駅徒歩10分 | |
| 営業時間: | 平日9:00~18:30 土9:00~18:00/定休日:日曜、祝日 | |
| 免許番号: | 新潟県知事(15)第861号 |
|
| 所属団体名: | 公社 新潟県宅地建物取引協会 上越支部 | |
| 取引態様: | 貸主 | |
| ホームページ: | http://www.nissey.jp/ | |