1F角店舗、鴨島の中心地
| 物件名
所在地 |
面積
間取り 所在階 |
築年数
方位 |
賃料
管理費等 共益費 |
敷金
保証金 礼金 |
種別
構造 |
|---|---|---|---|---|---|
| リバーハイツ日成 店舗A A号室 新潟県上越市鴨島3-7-46 | 56.7㎡ (17.15坪) - 1階 | 31年 - | 11.42万円 なし なし | 2ヶ月 なし なし | 店舗 鉄筋コン |
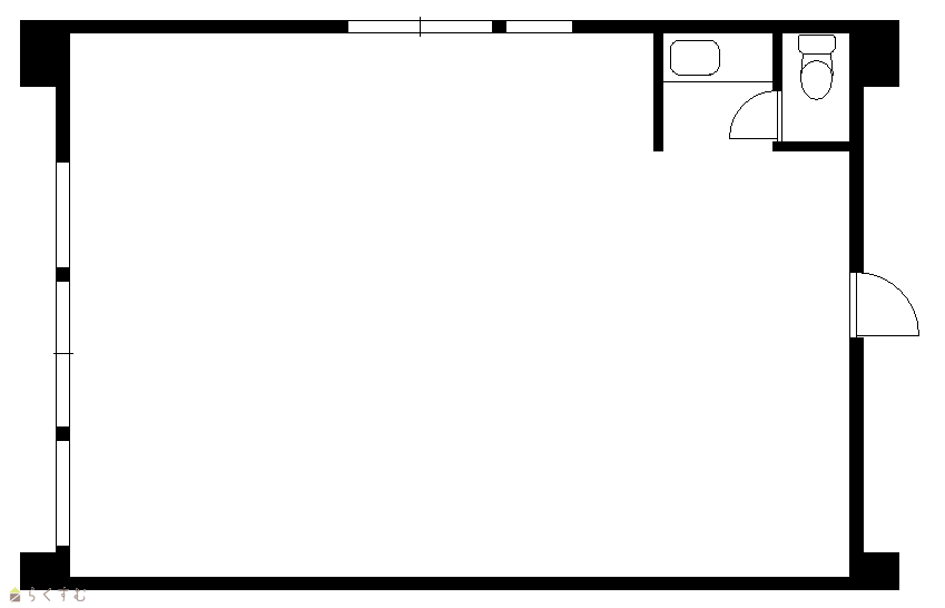
| 外観 | 間取り |
|---|---|
![]() ※画像クリックで拡大表示 交差点にあるマンションの1Fです。
|
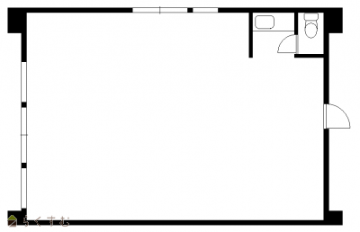
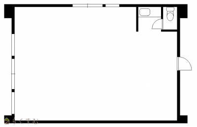
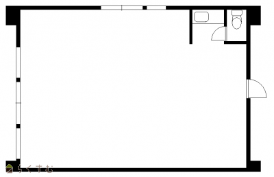
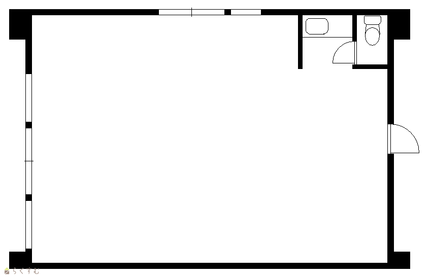
![]() ※画像クリックで拡大表示 間取り
|
| 詳細画像 | |
|
|
|
| 物件コード | 00238-100001 | ||
|---|---|---|---|
| 物件名 | リバーハイツ日成 店舗A | ||
| 交通 | 駅:妙高はねうまライン 高田駅から徒歩40分、バス:鴨島団地前から徒歩1分 | ||
| 所在地 | 新潟県上越市鴨島3-7-46 | ||
| 物件種別 | 店舗 | ||
| 総戸数 | 1戸 | ||
| 構造 | 鉄筋コン | 階建 | 地上5階建 |
| 所在階/階数 | 1階/5階 | 号室 | A号室 |
| 面積 | 56.7㎡ /17.15坪 | 方位 | - |
| 間取り | - | ||
| 賃料 | 11.42万円/月 | 管理費 | なし |
| 礼金 | なし | 敷金 | 2ヶ月 |
| 共益費 | なし | 修繕積立金 | なし |
| ほか初期費用 | なし | その他諸費用 | なし |
| 更新料 | なし | 火災保険 | 相当額 |
| 保証金 | なし | 町内費 | 800円 |
| 駐車場 | 4台無料 | 保証会社 |
区分:指定なし - |
| 連帯保証人 |
区分:要 - |
||
| 仲介手数料 | なし | ||
| 築年月 | 1995年4月(築31年) | ||
| おすすめ条件 | 事務所利用:可 | ||
| 学校区 | 稲田小学校(940m)・城東中学校(723m) | ||
| 設備 | 1階、OAフロア、駐車場あり | ||
| 入居時期 | 即入居可 | ||
| 取引態様 | 貸主 | ||
| 備考 | - | ||
| 取り扱い会社 |
日成商事株式会社 新潟県上越市木田1-8-11 |
||
| 情報登録日 | 2026/04/14 | 次回更新予定日 | 2026/05/25 |
|
セブン-イレブン 上越東城店(コンビニ)まで640m クスリのアオキ鴨島店(スーパー)まで550m ナルス 鴨島店(スーパー)まで630m おおまち薬局鴨島店(ドラッグストア)まで280m コダマ調剤薬局(ドラッグストア)まで610m にいがた調剤薬局高田(ドラッグストア)まで790m かもじま薬局(ドラッグストア)まで590m ツカダ薬局(ドラッグストア)まで590m 共創未来 とよば薬局(ドラッグストア)まで780m 日本調剤 高田薬局(ドラッグストア)まで720m |
クスリのアオキ鴨島薬局(ドラッグストア)まで760m トモエ薬局高田店(ドラッグストア)まで720m 新潟県立中央病院(病院)まで540m 大野内科医院(病院)まで650m 山崎内科・消化器科医院(病院)まで600m わか皮ふ科クリニック(病院)まで820m 大島クリニック(病院)まで750m 土田脳神経外科医院(病院)まで760m セブン銀行ATM(銀行)まで630m 上越鴨島郵便局(郵便局)まで300m |
※カメラのアイコンがある場合は、マウスをポイントするとその施設の画像がご覧いただけます。
| TEL: | 025-524-6441 | |
|---|---|---|
| 所在地: | 新潟県上越市木田1-8-11 | |
| 交通: | 妙高はねうまライン春日山駅徒歩10分 | |
| 営業時間: | 平日9:00~18:30 土9:00~18:00/定休日:日曜、祝日 | |
| 免許番号: | 新潟県知事(15)第861号 |
|
| 所属団体名: | 公社 新潟県宅地建物取引協会 上越支部 | |
| 取引態様: | 貸主 | |
| ホームページ: | http://www.nissey.jp/ | |