上越・妙高・糸魚川の賃貸アパート・賃貸マンション・土地・一戸建てなど不動産情報サイト

  • らくすむ上越版 上越・妙高・糸魚川の不動産情報サイト

新潟県上越市春日野1丁目4番38号 事務所 11万円の物件情報

山麓線近く交通のアクセス良好ーーー!事務所、サロンなどにいかがでしょうか♪♪

物件名
所在地
面積
間取り
所在階
築年数
方位
賃料
管理費等
共益費
敷金
保証金
礼金
種別
構造
new【募集中】ヤマダオフィス Ⅱ
A号室
新潟県上越市春日野1丁目4番38号
52.99㎡
(16.02坪)
-
1階
7年
-
11万円
2,200円/月
なし
なし
なし
11万円
事務所
木造
  • new【募集中】ヤマダオフィス Ⅱ
    株式会社 お不動さん
  • この物件を問い合わせる/無料
  • TEL: 025-520-8197

物件画像

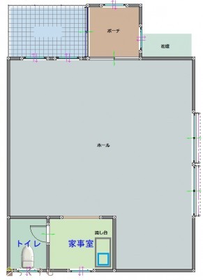
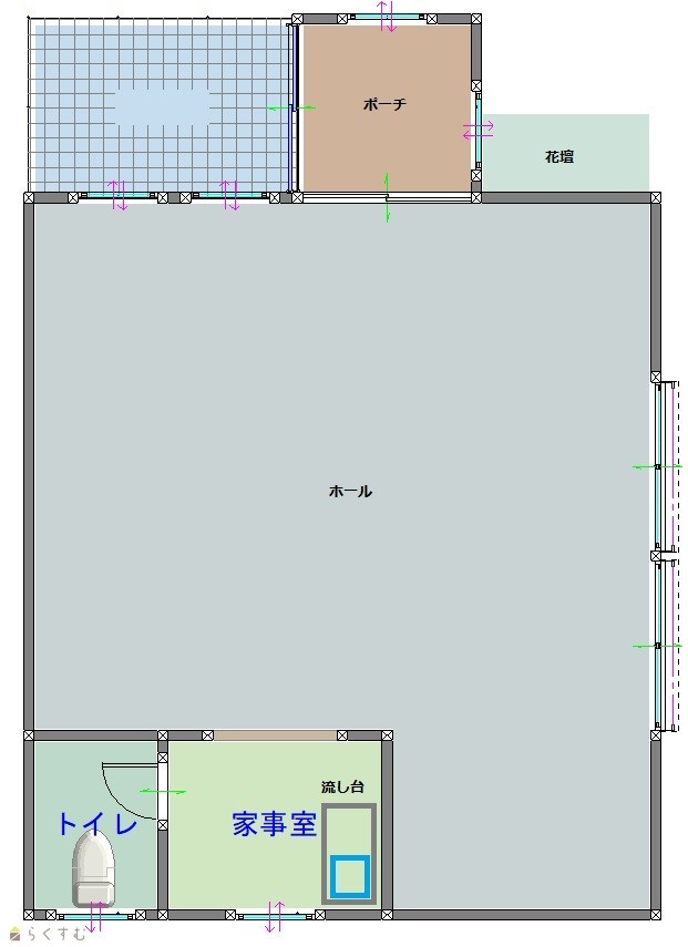
外観 間取り
物件画像
※画像クリックで拡大表示
外観
物件画像
※画像クリックで拡大表示
間取り図
詳細画像


物件概要

テナントのご主人様☆☆募集中ーーー☆☆
物件コード 00200-100318
物件名 new【募集中】ヤマダオフィス Ⅱ
交通 駅:妙高はねうまライン 春日山駅から徒歩12分、バス:春日山町三丁目北から徒歩3分
所在地 新潟県上越市春日野1丁目4番38号
物件種別 事務所
総戸数 -
構造 木造 階建 地上1階建
所在階/階数 1階/1階 号室 A号室
面積 52.99㎡ /16.02坪 方位 -
間取り -
賃料 11万円/月 管理費 2,200円/月
礼金 11万円 敷金 なし
共益費 なし 修繕積立金 なし
ほか初期費用 なし その他諸費用 なし
更新料 なし 火災保険 (2年)
保証金 なし 町内費 なし
駐車場 なし
保証会社 区分:加入要
保証料:月額合計賃料の77%、更新料不要。
連帯保証人 区分:不要
-
仲介手数料 110,000円
築年月 2019年1月(築7年)
おすすめ条件 法人:可、ペット:不可、楽器:不可、事務所利用:可
学校区 春日小学校(316m)・春日中学校(474m)
設備 1階、融雪設備あり、光ファイバー、エアコン、スケルトン、給湯、駐車場あり
入居時期 退去予定:令和7年11月30日
取引態様 仲介
備考 ※賃料、管理費は課税後の表記金額です。
※現在、賃貸中のため内覧は令和 7年 12月以降可能。
・その他:町内会は事業所は加入できない為町内会費不要。但し、ごみ等は借主にて別途、回収業者を手配となります。
【設備】・電気・上水道・下水道・流し台・給湯室・電気温水器・エアコン(2台)・ブラインドつき・火災報知器・温水洗浄便座・ネット環境光コンセント・照明あり・風除室・花壇・外水道・ポーチ・駐車場 5台つき・消雪設備あり
取り扱い会社

株式会社 お不動さん

上越市中央一丁目12番36号

情報登録日 2025/10/03 次回更新予定日 2026/01/26
  • new【募集中】ヤマダオフィス Ⅱ
    株式会社 お不動さん
  • この物件を問い合わせる/無料
  • TEL: 025-520-8197

この物件の地図・周辺情報・行政情報

この物件の周辺情報・行政情報を詳しく見る
【周辺情報】
物件の近くにあるコンビニや銀行・学校など、アイコン付のマップで詳しく表示できます!
【行政情報】
水道料や下水道料・ガス料金など、暮らしに関係のある情報を表示しています。
セブン-イレブン 上越春日野店(コンビニ)まで110m
ローソン 上越春日山町二丁目店(コンビニ)まで230m
セブン-イレブン 上越大豆1丁目店(コンビニ)まで570m
原信 春日山店(スーパー)まで390m
(株)肉のたなべ バッカス館 上越店(スーパー)まで900m
まつむら歯科 上越診療所(病院)まで40m
はやつ内科医院(病院)まで70m
上田レディースクリニック(病院)まで430m
かなざわ内科クリニック(病院)まで400m
上越地域総合健康管理センター 住民・学童健診担当(病院)まで350m
小児科はやしクリニック(病院)まで380m
めぐみ皮膚科(病院)まで660m
上越信用金庫 大学前支店(銀行)まで280m
JAえちご上越 春日支店(銀行)まで880m
第四銀行 高田営業部 上越市役所出張所(銀行)まで920m
上越中屋敷郵便局(郵便局)まで380m

※カメラのアイコンがある場合は、マウスをポイントするとその施設の画像がご覧いただけます。


担当取扱い店舗情報

取扱い店舗画像
株式会社 お不動さん
TEL: 025-520-8197
所在地: 上越市中央一丁目12番36号
交通: 直江津駅
営業時間: 8:30~17:30/定休日:日曜・祝日・第2土曜日・第4土曜日
免許番号: 新潟県知事(2)第5449号 この会社の情報を詳しく見る
所属団体名: 公社 新潟県宅地建物取引協会 上越支部
取引態様: 仲介
ホームページ: https://ofudousan.amebaownd.com/