物件画像を詳しく見る

アパホテル&リゾート上越妙高の天然温泉が利用できます。
物件概要
リゾート内施設(ホテル、ゴルフその他アクティビティなど)が優待料金で利用できます。
-
物件コード
00403-200001
-
物件名
妙高パインバレーロジュマン
-
交通
駅:妙高はねうまライン 関山駅から徒歩77分、バス:坂口新田から徒歩74分
-
所在地
新潟県妙高市桶海1017-2妙高パインバレーロジュマン
物件へのルート表示
-
物件種別
中古マンション
-
構造
鉄骨鉄筋コン
-
階建
地上14階地下1階建
-
建ぺい率/容積率
70%/200%
-
建物面積
10,306.56㎡
/3,117.73坪
-
土地面積
-
-
築年月
1991年8月(築34年)
-
入居時期
相談
-
用途地域
無指定
-
地目
宅地
-
都市計画
非線引き都市計画区域
-
形状
-
-
道路
妙高市道
物件詳細情報
-
所在階/階数
11階/14階
-
号室
-
-
販売価格
12,800,000円
-
方位
-
-
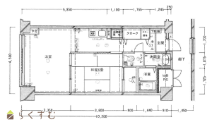
間取り
1DK、表示面積は、壁芯面積です。登記面積はこれよりも少なくなります。
-
専有面積
43.9㎡
/13.27坪
-
バルコニー面積
-
-
その他面積
-
-
駐車場
無料(先着順)
-
管理費
11,000円
-
修繕積立金
2,200円
-
引渡
-
現況
居住中
-
仲介手数料
488,400円
-
組合費他
2,311円
-
調整費
5,940円
給湯利用料別途
-
おすすめ条件
ペット:不可、楽器:不可
-
学校区
妙高小学校(4,615m)・妙高中学校(4,238m)
-
設備
10階建て以上、洗濯機置き場、エレベーター、和室あり、駐車場空きあり、管理人常駐(日中)、IHクッキングヒーター、温水洗浄便座、シャワー付き洗面台、LPG、公営水道、浄化槽
-
取引態様
一般
-
情報登録日
2026/04/01
-
次回更新予定日
2026/05/06
備考
リビングはフローリングにリフォーム済みです。部屋の窓からは妙高山を眺めることができ、周辺には赤倉スキー場や苗名の滝があり、上越海水浴場や長野の善光寺も車で1時間程です。ホテルでは、焚火や花火イベントも開催していて、部屋から花火を見ることができます!ご家族やお友達とのシーズン使いにも!
取扱い会社
いえみらいサポート株式会社