
妙油 詳細
物件画像を詳しく見る

石垣が特徴の住宅用地物件です♪
物件概要
-
物件コード
00277-200153
-
物件名
妙油
-
交通
駅:妙高はねうまライン 南高田駅から徒歩119分
-
所在地
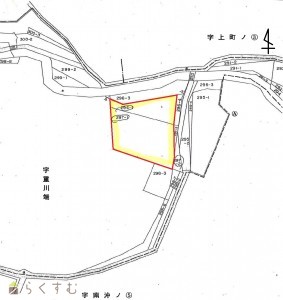
新潟県上越市妙油297番1他1筆
物件へのルート表示
-
物件種別
売土地・分譲地
-
構造
-
-
階建
-
-
建ぺい率/容積率
70%/200%
-
建物面積
-
-
土地面積
554.43㎡
/167.71坪
-
築年月
-
-
入居時期
即入居可
-
用途地域
用途の指定のない地域
-
地目
宅地 (現状:宅地)
-
都市計画
市街化調整区域
-
形状
間口 32.9m
-
道路
東側約6.4m
物件詳細情報
-
所在階/階数
-
-
号室
-
-
販売価格
250,000円
-
方位
-
-
間取り
-
-
専有面積
-
-
バルコニー面積
-
-
その他面積
-
-
駐車場
-
-
管理費
-
-
修繕積立金
-
-
引渡
即時
-
現況
-
仲介手数料
330,000円
-
おすすめ条件
-
-
学校区
高士小学校(580m)・雄志中学校(4,303m)
-
設備
角地、学校近く、閑静な住宅街、側溝、LPG、上水道(宅地内)、下水道(宅地内)、住宅向け
-
取引態様
一般
-
情報登録日
2025/10/27
-
次回更新予定日
2026/05/07
備考
・緑に囲まれた100坪以上の住宅用地です!
・石垣があって風情を感じられる見た目です!
・自然に囲まれた心和む立地です♪
※本体代金に別途諸経費が掛かりますので予めご了承下さいませ。
取扱い会社
有限会社田村家具店
-
TEL
025-523-2438
-
所在地
新潟県上越市稲田4-5-21
-
交通
高田駅
-
営業時間
午前9:00~午後18:00/定休日:水曜日 第1、第3日曜日
-
免許番号
新潟県知事(10)第2792号
-
所属団体名
公社 新潟県宅地建物取引協会 上越支部
-
取引態様
一般
Copyright (C) 株式会社 コモンライフ・コーポレーション. All Rights Reserved.
不動産検索サイト「らくすむ」及び関連サイトに記載の不動産情報は、会員規約に則り、情報提供会社様の責任のもとに発信されております。
不動産の賃借、購入に関しては賃借者、購入者ご自身が情報を確認され、会社企業様から説明を受けられたうえで判断をお願いいたします。
不動産検索サイト「らくすむ」及び関連サイトに記載の不動産情報、写真、デザイン、コンテンツなどの無断転載・転用・複製など禁止します。