| 物件コード | 00388-200002 | ||
|---|---|---|---|
| 物件名 | 【糸魚川市上刈1丁目中古住宅】 | ||
| 交通 | 駅:北陸新幹線 糸魚川駅から徒歩9分、バス:糸魚川小学校前から徒歩2分 | ||
| 物件所在地 | 新潟県糸魚川市上刈1丁目4-1 | ||
| 物件種別 | 中古一戸建て | ||
| 構造 | 木造鉄筋コン | 階建 | 地上3階建 |
| 建ぺい率/容積率 | 70%/200% | ||
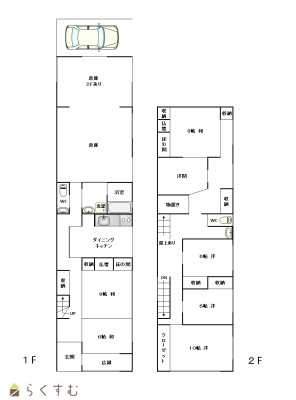
| 建物面積 | 1階 126.87㎡/ 2階 106.05㎡/ 3階 14.87㎡/ 計 247.79㎡ /74.95坪 | ||
| 土地面積 | 241.4㎡ /73.02坪 | ||
| 築年月 | 1996年7月(築29年) | ||
| 入居時期 | 相談 | ||
| 用途地域 | 第1種住居地域 | 地目 | 宅地 (現状:建付け地) |
| 都市計画 | 非線引き都市計画区域 | 学校区 | 糸魚川小学校(244m)・糸魚川中学校(704m) |
| 形状 | - | 道路 | 糸魚川市道「上刈白馬通線 「分水道線」*消雪P敷設 |
| 所在階/階数 | - | 号室 | - |
|---|---|---|---|
| 販売価格 | 11,500,000円 | 方位 | 東 |
| 間取り | 8DK | ||
| 専有面積 | - | バルコニー面積 | - |
| その他面積 | - | 駐車場 | - |
| 管理費 | - | 修繕積立金 | - |
| 引渡 | - | 現況 | 空家 |
| 仲介手数料 | 481,140円 | ||
| おすすめ条件 | - | ||
| 設備 | 角地、システムキッチン、3口コンロ、追いだき機能付き、温水洗浄便座、エアコンあり、ルーフバルコニー、都市ガス、上水道、下水道、BS端子、CS | ||
| 取引態様 | 仲介 | ||
| 備考 | *建物一部除却する事により駐車場スペース概ね2台分程度確保できます。 その他必要な費用 ●所有権移転登記費用 概算25万円程度 ●ローン利用の場合の諸経費 各種金融機関による ●物件取得後数カ月で不動産取得税を納税ください。(県税) ●詳細はお問い合わせください。 【物件予約等に関する注意事項】 当社では物件購入申込(予約)に際し以下の点をお願いしております。 ①自己資金のみでご購入の場合・・・・残高証明書のご提示 ②住宅ローン等利用の方の場合・・・・融資証明書のご提示 ③自己資金とローン併用の場合・・・・物件価格以上のいずれかのご提示 *融資審査中においての物件取り置きはご遠慮ください。 *申し込みには本人確認書類・印鑑・住民票・申込金10万円(*契約後売買代金充当)が必要です。 |
||
| 情報登録日 | 2025/07/08 | 次回更新予定日 | 2026/05/11 |
|
|
|
|
| TEL: | 025-552-1115 |
|---|---|
| 所在地: | 新潟県糸魚川市中央1-7-4 |
| 交通: | JR北陸新幹線糸魚川駅 |
| 営業時間: | 9:00~17:00/定休日:日曜・祝祭日他(年末年始・お盆期間・GW) |
| 免許番号: | 新潟県知事(15)第684号 |
| 所属団体名: | 公社 新潟県宅地建物取引協会 上越支部 |
| 取引態様: | 仲介 |