| 国道18号線沿い、コメリ、とまと近くの好立地♪ | |||
| 物件コード | 00265-200196 | ||
|---|---|---|---|
| 物件名 | R18・妙高市コメリ関山店近く 注目物件! | ||
| 交通 | 駅:妙高はねうまライン 関山駅から徒歩35分、バス:坂口新田から徒歩4分 | ||
| 物件所在地 | 新潟県妙高市坂口新田305-1 | ||
| 物件種別 | 中古一戸建て | ||
| 構造 | 木造 | 階建 | 地上3階建 |
| 建ぺい率/容積率 | 70%/200% | ||
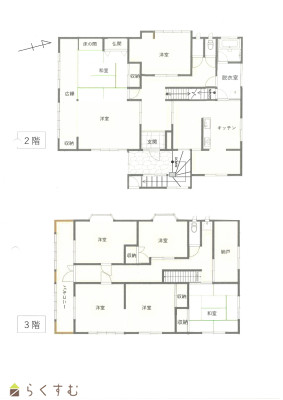
| 建物面積 | 1階 114.3㎡/ 2階 113.52㎡/ 3階 96.88㎡/ 計 324.7㎡ /98.22坪 | ||
| 土地面積 | 337.03㎡ /101.95坪 | ||
| 築年月 | 1990年11月(築35年) | ||
| 入居時期 | 相談 | ||
| 用途地域 | 用途の指定のない地域 | 地目 | 宅地 (現状:宅地) |
| 都市計画 | 非線引き都市計画区域 | 学校区 | 妙高小学校(2,330m)・妙高中学校(2,269m) |
| 形状 | 間口 40m × 奥行 20m | 道路 | 前面道路:国道18号線、除雪道、歩道除雪あり |
| 所在階/階数 | - | 号室 | - |
|---|---|---|---|
| 販売価格 | 23,000,000円 | 方位 | 東 |
| 間取り | 7DK | ||
| 専有面積 | - | バルコニー面積 | - |
| その他面積 | - | 駐車場 | - |
| 管理費 | - | 修繕積立金 | - |
| 引渡 | - | 現況 | 居住中 |
| 仲介手数料 | 825,000円 | ||
| おすすめ条件 | - | ||
| 設備 | 日当り良好、駐車3台以上可能、システムキッチン、IHクッキングヒーター、追いだき機能付き、バス1坪以上、温水洗浄便座、トイレ2か所以上、エアコンあり、上水道、下水道、内装リフォーム済み、別荘、田舎暮らし、事業向け | ||
| 取引態様 | 一般 | ||
| 備考 | - | ||
| 情報登録日 | 2026/02/25 | 次回更新予定日 | 2026/03/12 |
|
|
|
|
|
|
| TEL: | 0255-72-0003 |
|---|---|
| 所在地: | 新潟県妙高市雪森645-1 |
| 交通: | 妙高はねうまライン北井駅 |
| 営業時間: | 8時~17時/定休日:土・日・祝日、その他夏季・年末年始 |
| 免許番号: | 新潟県知事(12)第2463号 |
| 所属団体名: | 公社 新潟県宅地建物取引協会 上越支部 |
| 取引態様: | 一般 |