| 賃借人は母屋のみ、他倉庫や離れの部屋や果樹園は、利用可能です。 | |||
| 物件コード | 00237-200089 | ||
|---|---|---|---|
| 物件名 | 三和区田売家 | ||
| 交通 | 駅:妙高はねうまライン 高田駅から徒歩128分 | ||
| 物件所在地 | 新潟県上越市三和区田730 | ||
| 物件種別 | 中古一戸建て | ||
| 構造 | 木造 | 階建 | 地上2階建 |
| 建ぺい率/容積率 | - | ||
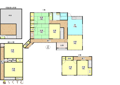
| 建物面積 | 1階 159.33㎡/ 2階 82.81㎡/ 計 242.14㎡ /73.24坪 | ||
| 土地面積 | 1,304.97㎡ /394.75坪 | ||
| 築年月 | 1976年11月(築49年) | ||
| 入居時期 | 現在賃貸中原則入居はできません | ||
| 用途地域 | 用途の指定のない地域 | 地目 | 宅地 |
| 都市計画 | 都市計画区域外 | 学校区 | 三和小学校(493m)・三和中学校(2,978m) |
| 形状 | - | 道路 | 西側公道8m、北側公道2m |
| 所在階/階数 | - | 号室 | - |
|---|---|---|---|
| 販売価格 | 3,000,000円 | 方位 | 北西 |
| 間取り | 8DK (和室:6畳、8畳) (洋室:8、6、8、6、10、10) 現在入居している賃貸範囲は、母屋のみです。 |
||
| 専有面積 | - | バルコニー面積 | - |
| その他面積 | - | 駐車場 | - |
| 管理費 | - | 修繕積立金 | - |
| 引渡 | - | 現況 | 賃貸中 |
| 仲介手数料 | 330,000円 | ||
| おすすめ条件 | - | ||
| 設備 | 角地、追いだき機能付き、温水洗浄便座、エアコンあり、LPG、上水道、下水道、CS、内装リフォーム済み、2世帯向き、田舎暮らし | ||
| 取引態様 | 一般 | ||
| 備考 | 敷地内は、母屋を賃貸、2階建の作業小屋、廊下で繋がっている別棟2階建ての倉庫、果樹園と配置されています。 | ||
| 情報登録日 | 2025/06/06 | 次回更新予定日 | 2026/05/06 |
|
|
|
|
|
| TEL: | 0120-178-153 |
|---|---|
| 所在地: | 新潟県上越市本町4-2-19 |
| 交通: | 妙高はねうまライン高田駅 |
| 営業時間: | 10:00~18:00/定休日:水・第一第三日曜日,祝日 |
| 免許番号: | 新潟県知事(10)第2950号 |
| 所属団体名: | 公社 新潟県宅地建物取引協会 上越支部 |
| 取引態様: | 一般 |