上越・妙高・糸魚川の賃貸アパート・賃貸マンション・土地・一戸建てなど不動産情報サイト

  • らくすむ上越版 上越・妙高・糸魚川の不動産情報サイト

新潟県妙高市末広町1091-1 中古一戸建て 6DK 16,700,000円の物件情報

南側出入口を使って住宅兼、美容系店舗や塾などにも利用できます。

物件名/所在地 詳細 価格
末広町中古住宅
新潟県妙高市末広町1091-1
  • 土地面積
    :608.43㎡ /184.05坪
  • 建物面積
    :268.91㎡ /81.34坪
  • 間取り
    :6DK
  • 築年月
    :1997年7月
16,700,000
  • 末広町中古住宅
    楽栄不動産株式会社
  • この物件を問い合わせる/無料
  • TEL: 0255-72-0003

物件画像

外観 間取り
物件画像
※画像クリックで拡大表示
外観
物件画像
※画像クリックで拡大表示
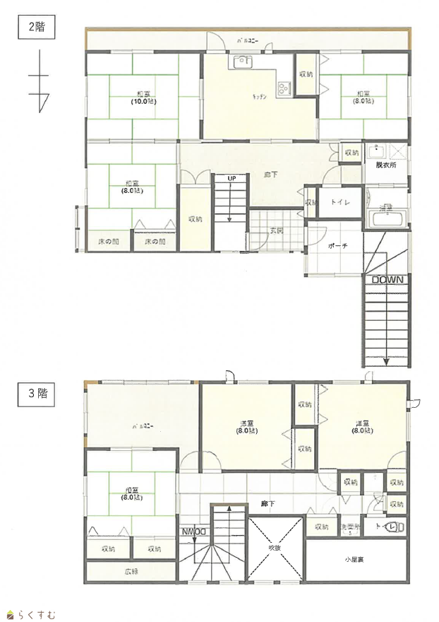
間取り
詳細画像


物件概要

小中学校、新井高校、けいなん病院徒歩圏内です。
物件コード 00265-200182
物件名 末広町中古住宅
交通 駅:妙高はねうまライン 新井駅から徒歩22分、バス:末広町から徒歩6分
物件所在地 新潟県妙高市末広町1091-1
物件種別 中古一戸建て
構造 木造鉄筋コン 階建 地上3階建
建ぺい率/容積率 70%/200%
建物面積 1階 95.23㎡/ 2階 99.57㎡/ 3階 74.11㎡/ 計 268.91㎡ /81.34坪
土地面積 608.43㎡ /184.05坪
築年月 1997年7月(築28年)
入居時期 相談
用途地域 用途の指定のない地域 地目 宅地
都市計画 非線引き都市計画区域 学校区 新井小学校(694m)・新井中学校(512m)
形状 間口 30m × 奥行 20m 道路 妙高市道
  • 末広町中古住宅
    楽栄不動産株式会社
  • この物件を問い合わせる/無料
  • TEL: 0255-72-0003

物件詳細情報

所在階/階数 - 号室 -
販売価格 16,700,000円 方位 -
間取り 6DK (和室:8.0畳、8.0畳、10.0畳、8.0畳) (洋室:8.0、8.0)
9DK
専有面積 - バルコニー面積 -
その他面積 - 駐車場 -
管理費 - 修繕積立金 -
引渡 - 現況 空家
仲介手数料 617,100円
おすすめ条件 -
設備 角地、閑静な住宅街、駐車3台以上可能、システムキッチン、追いだき機能付き、温水洗浄便座、トイレ2か所以上、シャワー付き洗面台、エアコンあり、24時間換気システム、都市ガス、LPG、上水道、下水道、2世帯向き
取引態様 専属専任
備考 西側に広い庭もあり、畑も楽しめます。サッカーやバスケットの練習コートにしても!
取り扱い会社

楽栄不動産株式会社

新潟県妙高市雪森645-1

情報登録日 2025/09/26 次回更新予定日 2025/11/17
  • 末広町中古住宅
    楽栄不動産株式会社
  • この物件を問い合わせる/無料
  • TEL: 0255-72-0003

この物件の地図・周辺情報・行政情報

この物件の周辺情報・行政情報を詳しく見る
【周辺情報】
物件の近くにあるコンビニや銀行・学校など、アイコン付のマップで詳しく表示できます!
【行政情報】
水道料や下水道料・ガス料金など、暮らしに関係のある情報を表示しています。

担当取扱い店舗情報

取扱い店舗画像
楽栄不動産株式会社
TEL: 0255-72-0003
所在地: 新潟県妙高市雪森645-1
交通: 妙高はねうまライン北井駅
営業時間: 8時~17時/定休日:土・日・祝日、その他夏季・年末年始
免許番号: 新潟県知事(12)第2463号 この会社の情報を詳しく見る
所属団体名: 公社 新潟県宅地建物取引協会 上越支部
取引態様: 専属専任
ホームページ: https://rakuei.info/