| 物件コード | 00368-100001 | ||
|---|---|---|---|
| 物件名 | 春日山管財ビル 1F部分 | ||
| 交通 | 駅:妙高はねうまライン 春日山駅から徒歩16分、バス:春日野一丁目から徒歩2分 | ||
| 所在地 | 新潟県上越市大豆1丁目8-43 | ||
| 物件種別 | 事務所 | ||
| 総戸数 | 1戸 | ||
| 構造 | 鉄骨 | 階建 | 地上2階建 |
| 所在階/階数 | 1階/2階 | 号室 | - |
| 面積 | 404.52㎡ (122.36坪) | 方位 | - |
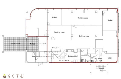
| 間取り |
|
||
| 賃料 | 66万円/月 | 管理費 | 5.5万円/月 |
| 礼金 | なし | 敷金 | 360万円 |
| 共益費 | なし | 修繕積立金 | なし |
| ほか初期費用 | なし | その他諸費用 | なし |
| 更新料 | なし | 火災保険 | なし |
| 保証金 | なし | 町内費 | なし | 保証会社 |
区分:加入要 - |
| 連帯保証人 |
区分:不要 - |
||
| 駐車場 | 専有20台 | ||
| 仲介手数料 | なし | ||
| 築年月 | 1997年5月(築28年) | ||
| おすすめ条件 | ペット:相談 | ||
| 学校区 | 春日小学校(534m)・春日中学校(584m) | ||
| 設備 | 1階、オートロック、24時間セキュリティー、エアコン、男女トイレ別、即引き渡し可、駐車場あり | ||
| 入居時期 | 相談 | ||
| 取引態様 | 貸主 | ||
| 備考 | ※専有部分は、1F間取り図より赤枠で囲われたエリアとなります。車寄せポーチから風除室、エントランスまでのエリアは共有スペースとなります。 ※エアコンは2024年に入れ替え済みです。 ※保証区分についての指定は無く、相談の上内容を決定します。 |
||
| 情報登録日 | 2025/06/27 | 次回更新予定日 | 2026/05/04 |
|
|
|
|
| TEL: | 025-543-9402 |
|---|---|
| 所在地: | 新潟県上越市五智1-2-19 |
| 交通: | 妙高はねうまライン「直江津駅」より徒歩10分 |
| 営業時間: | 平日9:00~17:00/定休日: |
| 免許番号: | 新潟県知事(1)第5746号 |
| 所属団体名: | 公社 新潟県宅地建物取引協会 上越支部 |
| 取引態様: | 貸主 |