| 物件コード | 00200-100201 | ||
|---|---|---|---|
| 物件名 | 【募集中】西本町1丁目貸テナント 2F(南側) | ||
| 交通 | 駅:日本海ひすいライン 直江津駅から徒歩5分、バス:西本町一丁目から徒歩1分 | ||
| 所在地 | 新潟県上越市西本町1丁目16番17号 | ||
| 物件種別 | 店舗 | ||
| 総戸数 | - | ||
| 構造 | 鉄骨 | 階建 | 地上3階建 |
| 所在階/階数 | 2階/3階 | 号室 | 南側号室 |
| 面積 | 39.02㎡ (11.8坪) | 方位 | - |
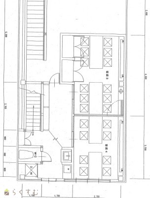
| 間取り |
|
||
| 賃料 | 7万円/月 | 管理費 | なし |
| 礼金 | なし | 敷金 | 7万円 |
| 共益費 | なし | 修繕積立金 | なし |
| ほか初期費用 | なし | その他諸費用 | なし |
| 更新料 | なし | 火災保険 | テナント保険 (2年)21,300円 |
| 保証金 | なし | 町内費 | 月額1,200円 | 保証会社 |
区分:加入要 保証料:月額合計賃料の77%、更新料なし |
| 連帯保証人 |
区分:不要 - |
||
| 駐車場 | 別途近隣6,000円~ | ||
| 仲介手数料 | 77,000円 | ||
| 築年月 | 1987年6月(築38年) | ||
| おすすめ条件 | 子供:不可、ペット:不可 | ||
| 学校区 | 直江津南小学校(352m)・直江津中学校(360m) | ||
| 設備 | 2階以上、エアコン、即引き渡し可、飲食店可、居抜き、給湯 | ||
| 入居時期 | 即入居可 | ||
| 取引態様 | 仲介 | ||
| 備考 | ・町内会費:(月額)1,200円を別途町内に納入(一括払い 可) ・駐車場:なし、近隣にて別途契約(¥6,000~) ・保証委託契約、テナント保険:要加入 ・ワンフロア22㎡(約13.3帖)、エアコン2台、照明、収納2ヶ所、洋式水洗便座、洗面化粧台 ・※電気メーターが共用の為、貸主負担で入居前に個別専用メーターの工事をします。 ・造作可能、その他 使用用途等に関して協議、応相談可能。 |
||
| 情報登録日 | 2025/03/01 | 次回更新予定日 | 2026/06/11 |
|
|
|
|
|
|
| TEL: | 025-520-8197 |
|---|---|
| 所在地: | 上越市中央一丁目12番36号 |
| 交通: | 直江津駅 |
| 営業時間: | 8:30~17:30/定休日:日曜・祝日・第2土曜日・第4土曜日 |
| 免許番号: | 新潟県知事(2)第5449号 |
| 所属団体名: | 公社 新潟県宅地建物取引協会 上越支部 |
| 取引態様: | 仲介 |